柔構造樋門の本体(本体縦方向、本体横方向)と付属構造物
(門柱、胸壁、翼壁、しゃ水工)の設計計算、図面作成プログラム
初版リリース:2006.10.11/最新Ver.リリース:2025.10.31
関連製品
Engineer's Studio®
Geo Engineer's Studio
弾塑性地盤解析(GeoFEAS) 2D
圧密沈下の計算
3Dパラメトリックツール水工
CAD統合
3D配筋
電子納品
SXF3.1
IFC
3D PDF
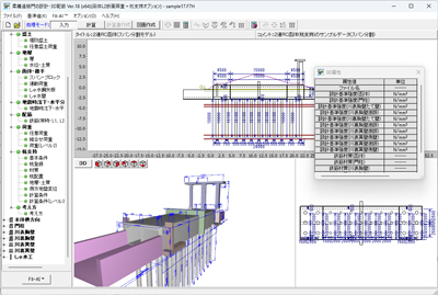
柔構造樋門本体の縦方向・横方向、門柱、胸壁、翼壁、しゃ水工の設計計算、図面作成プログラムです。門柱における河川構造物の耐震性能照査指針・解説(R2.2)での静的照査法にも対応しています。樋門本体と付属構造物(門柱、胸壁、翼壁)の配筋図、構造一般図、数量計算書を作成可能です。
特長
計算機能
適用範囲
| 断面構造形式 | 矩形RC函体 矩形PC函体(1連、2連BOX) 円形函体(鋼管、RC巻立、コンクリート管、ダクタイル鋳鉄管、ヒューム管、高耐圧ポリエチレン管) 三面水路 門柱レス 2連函体の内空幅変化 翼壁を含んだモデル化にも対応 |
| 緊張方法 | 単スパン、全スパン緊張(パッシブテンション) |
| 継手形式 | 可とう性継手、カラー継手、弾性継手(バネ値入力)、継手なし (弾性継手は継手毎にバネ指定可) |
| スパン、ブロック数 | 最大50スパン、最大10ブロック/スパン ※ブロックごとに断面を定義することが可能です。 |
| 盛土ブロック数 | 最大20ブロック |
| 地層数 | 最大20層 |
| しゃ水鋼矢板設置数 | 最大50 ※鉛直バネ値(軸方向バネ定数)を算出することが可能です。 |
| 縦方向FRAME解析の荷重ケース数 | ・基本荷重ケースとして、任意荷重ケースを常時、地震時ごとに最大5ケースまで設定可能。 ・組合せケース(検討ケース)として、常時、地震時ごとに最大5ケースまで設定可能。 |
| 本体縦方向の入力データ | 函体形状、函体寸法データを連動することが可能。 |
| 死荷重(水位) | 最大5ケースまで指定可能。 ・死荷重は、外水位、内水位とも個別に任意の高さを指定可能。 ・活荷重は、T荷重を自動生成し、1ケース10荷重まで指定可能。 ・活荷重は、土被りの制限値(4.0m以上/未満)に準じて載荷可能。 |
| 活荷重 | 最大5ケースまで指定可能。 |
| 門柱構造形式 | 1門柱、2門柱 |
| 横方向ケース数 | 常時、地震時の2ケース |
| 縦方向ケース数 | 常時、地震時毎に最大5ケース定義可能。 |
| 横方向、縦方向の任意荷重ケース | 最大10ケース定義可能。 |
| 横方向FRAME解析の荷重ケース数 | 最大7ケースの任意荷重ケースを定義可能。 定義された任意荷重ケースは、常時・地震時のいずれかの検討ケースに振り分ける。 |
| 胸壁形状 | 逆T型、L型 |
| 背面土形状 | 最大で3段 |
| 検討ケース | 常時、地震時ごとに最大5ケースまで指定可能 |
| 地盤反力度 | つま先版、かかと版の端部に対し、常時・地震時の5ケース ※本体縦方向設計から地盤反力度を連動可能です。 |
| 翼壁形状 | 翼壁形状 逆T(L)型、U型、U型張り出し、U型底版傾斜 |
| 検討ケース数 | 常時、地震時ごとに最大5ケースまで指定可能 |
| 浮上がり検討タイプ | 片側(1基)・全体(2基) ※逆T式翼壁設計時のみ |
函体縦方向レベル2断面照査オプション
杭支持オプション
図面作成
「標準部函体・門柱部・川裏側函体端部・胸壁(川表側/川裏側)・翼壁(川表側/川裏側)」の一般図および配筋図を作図します。また、一般図には、しゃ水壁・胸壁・翼壁部に設置するしゃ水工(鋼矢板)も作図します。本体縦方向のレベル2の配筋図出力に対応しました。

| 標準部函体 | 矩形RC函体(1連/2連ボックスカルバート) |
| 端部函体(川表側/川裏側) | 矩形RC函体(1連/2連ボックスカルバート) 2連の場合、端部拡幅対応可能 |
| 門柱/端部函体 | 1門/2門柱、端部函体(1連/2連拡幅対応)、操作台 |
| 胸壁(川表側/川裏側) | 逆T型/L型胸壁、鋼矢板によるしゃ水工 |
| 翼壁(川表側/川裏側) | 側壁(U型/逆T型)、先端壁(L型/逆T型)翼壁、水叩き部 |
| しゃ水壁 | 逆T型/ I 型しゃ水壁、鋼矢板によるしゃ水工 |
| 継ぎ手 | 矩形巻き立てカラー継ぎ手 |
| 標準部函体 | 横方向主鉄筋、縦方向主鉄筋、スターラップ | |
| 側端部函体 | 函体部 | 横方向主鉄筋、縦方向主鉄筋、スターラップ |
| ゲート部鉄筋 | 外面鉄筋、内面鉄筋(側壁/中壁)、帯鉄筋(側壁/中壁)、ハンチ筋 横鉄筋(頂版/底板)、底版鉄筋、組立筋 |
|
| 土留め壁部鉄筋 | 主鉄筋、配力筋、天端筋、組立筋 | |
| 操作台鉄筋 | 横方向主鉄筋、縦方向主鉄筋、組立筋 | |
| 門柱鉄筋 | 外周鉄筋、内面鉄筋(側壁/中壁)、帯鉄筋、ハンチ筋 | |
| 側胸壁 | たて壁主鉄筋、たて壁配力筋、天端筋、底版主鉄筋、底版配力筋、組立筋 | |
| 側翼壁 | 側壁(外面/内面)主鉄筋、側壁(外面/内面)配力筋、天端筋、底版主鉄筋、底版配力筋、組立筋、ハンチ筋 | |
| しゃ水壁鉄筋 | たて壁主鉄筋、たて壁配力筋、組立筋 | |
| カラー継手 | 横方向鉄筋、帯鉄筋 | |
「図面作成モード」の入力と数量計算書の出力設定(名称・桁数・まるめ方法)を行うことにより、各部のコンクリート体積、型枠面積、鉄筋質量、鋼材質量を算出し、数量計算書を作成します。数量計算書には総括表、躯体寸法及び数量算出過程を記述します。
| (一財)国土開発技術研究センター | 柔構造樋門設計の手引き 平成10年11月 |
| 国土交通省 | 河川構造物の耐震性能照査指針・解説 令和2年2月 河川砂防技術基準 設計編 技術資料 第1章第8節 樋門 令和3年3月 土木構造物設計マニュアル(案)-樋門編- 平成13年12月 土木構造物設計マニュアル(案)に係わる設計・施工の手引き(案)[樋門編] 平成13年12月 |
| (社)日本道路協会 | 道路土工カルバート工指針 平成11年3月 道路土工カルバート工指針 平成21年度 平成22年3月 樋門標準設計 取扱い説明書 平成15年4月 道路橋示方書・同解説 Ⅱ 鋼橋編 平成14年3月 道路橋示方書・同解説 Ⅳ 下部構造編 平成14年3月 道路橋示方書・同解説 Ⅴ 耐震設計編 平成14年3月 道路橋示方書・同解説 Ⅳ 下部構造編 平成24年3月 道路橋示方書・同解説 Ⅴ 耐震設計編 平成24年3月 杭基礎設計便覧 平成27年3月 杭基礎設計便覧 平成19年1月 杭基礎設計便覧 平成4年10月 杭基礎設計便覧 昭和61年1月 |
| その他 | 地震時保有水平耐力法に基づく水門・堰の耐震性能照査に関する計算例 平成20年3月(独)土木研究所 建設省河川砂防技術基準(案)同解説 設計編 [Ⅰ] 平成9年9月(社)日本河川協会 |
本体価格
価格は税込表示です
■本体価格
| 製品名 | 価格 |
|---|---|
| 柔構造樋門の設計・3D配筋 Ver.18 | ¥462,000(税抜¥420,000) |
| 函体縦方向レベル2断面照査オプション | ¥88,000(税抜¥80,000) |
| 杭支持オプション | ¥190,300(税抜¥173,000) |
■フローティングライセンス価格
本体価格の40%を追加いただくことで、誰でも、どこでも、どのPCでも製品の利用が可能となります。
| 製品名 | 価格 |
|---|---|
| 柔構造樋門の設計・3D配筋 Ver.18 | ¥184,800(税抜¥168,000) |
| 函体縦方向レベル2断面照査オプション | ¥35,200(税抜¥32,000) |
| 杭支持オプション | ¥76,120(税抜¥69,200) |
サブスクリプションサービス 契約価格
■サポート内容
・バージョンアップ無償提供 ・電話問合せテクニカルサポート
・問合せサポート(電子メール、FAX) ・ダウンロードサービス ・保守情報配信サービス
※ライセンス管理コスト削減、製品ご利用形態ニーズ多様化への対応を充実させることを目的として、従来の保守・サポート形態からより便利な、「サブスクリプションサービス」へ順次移行いたします(2016年4月1日~)。
価格は税込表示です
■サブスクリプション価格
| 製品名 | 初年度 | 1年 |
|---|---|---|
| 柔構造樋門の設計・3D配筋 Ver.18 | 無償 | ¥231,000(税抜¥210,000) |
| 函体縦方向レベル2断面照査オプション | ¥44,000(税抜¥40,000) | |
| 杭支持オプション | ¥95,150(税抜¥86,500) |
■サブスクリプションフローティング価格
| 製品名 | 初年度 | 1年 |
|---|---|---|
| 柔構造樋門の設計・3D配筋 Ver.18 | 無償 | ¥323,400(税抜¥294,000) |
| 函体縦方向レベル2断面照査オプション | ¥61,600(税抜¥56,000) | |
| 杭支持オプション | ¥133,210(税抜¥121,100) |
■サブスクリプション料率変更に関する価格体系改訂のご案内
2025年7月1日より、F8-AI™ UCサポートを実装した製品は、サブスクリプション価格を製品定価の50%(上表)にいたします。
■レンタルライセンス:短期間での利用により、低廉な価格でのライセンス利用が可能
■レンタルフローティングライセンス:ライセンスの認証をWeb経由で受ければ、誰でも、どこでも、どのPCでも製品の利用が可能
■レンタルアクセス:既に購入済みの製品の利用ライセンス数を増やす事が可能です。事前契約により、レンタルライセンス期間(1ヵ月~3ヵ月)の単位で自動的にライセンスが付与されます。利用実績に応じて後日請求いたします。事前申込価格として、レンタルライセンス価格の15%引きとなります。ユーザ情報ページにてお申込みいただけます。
※サービス強化、利便性向上を図る目的で「レンタルライセンス/レンタルフローティングライセンス」を2007年9月3日より提供を開始しました。
※レンタルライセンス/レンタルフローティングライセンス開始後の期間変更は出来ません。期間延長の場合は再申込となります。
レンタルライセンス/レンタルフローティングライセンス
価格は税込表示です
■レンタルライセンス
| 対象製品 | 2ヶ月 | 3ヶ月 | 6ヶ月 |
|---|---|---|---|
| 柔構造樋門の設計・3D配筋 Ver.18 | ¥207,900 | ¥244,860 | ¥300,300 |
| 函体縦方向レベル2断面照査オプション | ¥44,880 | ¥52,800 | ¥65,120 |
| 杭支持オプション | ¥85,635 | ¥100,859 | ¥123,695 |
■レンタルフローティングライセンス
| 対象製品 | 2ヶ月 | 3ヶ月 | 6ヶ月 |
|---|---|---|---|
| 柔構造樋門の設計・3D配筋 Ver.18 | ¥346,500 | ¥411,180 | ¥508,200 |
| 函体縦方向レベル2断面照査オプション | ¥75,680 | ¥89,760 | ¥110,880 |
| 杭支持オプション | ¥142,725 | ¥169,367 | ¥209,330 |
| 製品名 | アカデミー価格 |
|---|---|
| 柔構造樋門の設計・3D配筋 Ver.18 | ¥369,600(税抜¥336,000) |
| 函体縦方向レベル2断面照査オプション | ¥70,400(税抜¥64,000) |
| 杭支持オプション | ¥152,240(税抜¥138,400) |
バージョンアップ開発履歴
■バージョンアップ、リビジョンアップ(無償保守)の主な内容を一覧にしています。
旧版改訂、リバイバル版リリース時などの場合にご参考ください。
価格は税込表示です
| 柔構造樋門の設計・3D配筋 Ver.18 | ||
| バージョン | リリース日 | 主なバージョンアップ内容 |
| 18.0.0 | 25/10/31 |
|
動作環境
| OS | Windows 10 / 11 |
|---|---|
| CPU | Intel Coreシリーズおよび完全互換のあるCPU |
| 必要メモリ(OSも含む) | OSのシステム要件を満たし、問題なく動作する環境 |
| 必要ディスク容量 | x86(32bit):約470MB以上必要(インストール時及び実行時含む) x64(64bit):約730MB以上必要(インストール時及び実行時含む) |
| ディスプレイ(画面解像度) | 1024×768以上 |
| 入力データ拡張子 | F7H、FTG(門柱)、FTP(胸壁)、FTI(翼壁)、FTS(しゃ水工) <旧データ>FSW、FSG(門柱)、FSP(胸壁)、FSI(翼壁)、FSS(しゃ水工) |
| ファイル出力 | HTML、VRML、3DS、PSX、SFC、P21、DXF、DWG、JWW、JWC、TSD F8出力編集ツール対応:TXT、HTM、 PPF、DOC、 DOCX、XLSX、XLS、PDF、 JTD、JTDC |
| 他製品との連動 | <読込> 圧密沈下の計算logP曲線(AMG) 弾塑性地盤解析(GeoFEAS)2D解析結果データ(TXT) <保存> SI対応版 F8旧製品データ($o1) UC-win/Road(3DS、VRML) 圧密沈下の計算logP曲線(AMG) UC-Draw・3DCAD(PSX、TSD) 弾塑性地盤解析(GeoFEAS)2D地盤解析用地形データ(GF1) Engineer's Studio®データ(ES) |
| 備考 | 函体L2断面照査オプションを利用の際にはPentiumIV以上のCPUが必要 |
製品購入/お問い合わせ窓口
■FORUM8 オーダーページで購入
製品購入 - オーダーページ にて、バージョンアップ・新規製品・各種サービスの御見積作成・申込・決済ができます。
クレジット利用や、分割払いシステムでの購入も可能です。
ご質問は、バージョンアップセンタ(vc@forum8.co.jp)までお気軽にお問い合わせ下さい。
函体形状 :2連矩形、函体種別 :RC
門柱形式 :3柱、胸壁 : 逆T型、翼壁 : U型
▲サンプルデータ5( 562P、28,862KB )
▲サンプルデータ5(縦方向レベル2)( 332P、17,835KB )
▲サンプルデータ5(門柱レベル2)( 406P、13,620KB )
柔構造樋門本体の縦方向・横方向、門柱、胸壁、翼壁、しゃ水工の設計計算、図面作成プログラムです。門柱における河川構造物の耐震性能照査指針・解説(R2.2)での静的照査法にも対応しています。樋門本体と付属構造物(門柱、胸壁、翼壁)の配筋図、構造一般図、数量計算書を作成可能です。本体縦方向設計と付属構造物設計間でのデータ連動機能を有しています。
以下の計算・照査、および図面作成を行うことができます。
| 構造物 | 形状 | 断面力計算 | 応力度照査 | 本体縦方向 連動荷重計算 |
図面作成 | ||
| 本体縦方向 | 矩形 | RC函体 | 1連 | ○ | ○ | ○ | |
| 2連 | ○ | ○ | ○ | ||||
| PC函体 | 1連 | ○ | ○ | ||||
| 2連 | ○ | ○ | |||||
| 円形矩形 | RC巻立 | ○ | ○ | ||||
| 鋼管 | ○ | ○ | |||||
| コンクリート管 | ○ | ||||||
| ダクタイル鋳鉄管 | ○ | ||||||
| ヒューム管 | ○ | ||||||
| 高耐圧ポリエチレン管 | ○ | ||||||
| 本体横方向 | 矩形 | RC函体 | 1連 | ○ | ○ | ○ | |
| 2連 | ○ | ○ | ○ | ||||
| 門柱 | 1連 | ○ | ○ | ○ | ○ | ||
| 2連 | ○ | ○ | ○ | ○ | |||
| 胸壁 | 逆T型 | ○ | ○ | ○ | ○ | ||
| L型 | ○ | ○ | ○ | ○ | |||
| 翼壁 | 逆T型 | ○ | ○ | ○ | |||
| L型 | ○ | ○ | ○ | ||||
| U型 | ○ | ○ | ○ | ||||
| U型張り出し | ○ | ○ | |||||
| U型底版傾斜 | ○ | ○ | |||||
| 堤防保護部 | ○ | ○ | ○ | ○ | |||
矩形RC函体(1連、2連)の本体縦方向レベル2照査に対応しており、曲げ耐力、せん断耐力、継手(開口、目違い)を照査します。
Geo Engineer's Studio、および弾塑性地盤解析(GeoFEAS) 2Dで読み込み可能な地盤解析用地形データファイルを保存可能です。
また、これらの製品での解析結果(変位量)の読込みに対応しています。
Engineer's Studio®形式の入力データファイルの保存に対応しています。
矩形RC函体(1連、2連)の杭支持モデルの設計(L1許容応力度法、L2)に対応しています。照査内容は以下の通りです。
| 計算 | 照査内容 | |
| 常時・レベル1 | 函体 | ・応力度照査 ・継手の照査(開口、目違い) |
| 杭体 | ・応力度照査 ・支持力照査 ・負の周面摩擦力照査 ・杭頭接合照査 |
|
| レベル2 | 函体 | ・曲げ耐力照査 ・せん断耐力照査 ・継手の照査(開口、目違い) |
| 杭体 | ・曲げ耐力照査 ・せん断耐力照査 |
|
杭種は鋼管杭、RC杭、PHC杭、PC杭、場所打ち杭、SC杭、SCPHC杭、鋼管ソイルセメント杭、回転杭に対応しています。
Geo Engineer's Studio、および弾塑性地盤解析(GeoFEAS) 2Dで読み込み可能な地盤解析用地形データファイルを保存可能です。
また、これらの製品での解析結果(変位量)の読込みに対応しています。
Engineer's Studio®形式の入力データファイルの保存に対応しています。
| (一財)国土開発技術研究センター | 柔構造樋門設計の手引き 平成10年11月 |
| 国土交通省 | 河川構造物の耐震性能照査指針・解説 令和2年2月 河川砂防技術基準 設計編 技術資料 第1章第8節 樋門 令和3年3月 土木構造物設計マニュアル(案)-樋門編- 平成13年12月 土木構造物設計マニュアル(案)に係わる設計・施工の手引き(案)[樋門編] 平成13年12月 |
| (社)日本道路協会 | 道路土工カルバート工指針 平成11年3月 道路土工カルバート工指針 平成21年度 平成22年3月 樋門標準設計 取扱い説明書 平成15年4月 道路橋示方書・同解説 Ⅱ 鋼橋編 平成14年3月 道路橋示方書・同解説 Ⅳ 下部構造編 平成14年3月 道路橋示方書・同解説 Ⅴ 耐震設計編 平成14年3月 道路橋示方書・同解説 Ⅳ 下部構造編 平成24年3月 道路橋示方書・同解説 Ⅴ 耐震設計編 平成24年3月 杭基礎設計便覧 平成27年3月 杭基礎設計便覧 平成19年1月 杭基礎設計便覧 平成4年10月 杭基礎設計便覧 昭和61年1月 |
| その他 | 地震時保有水平耐力法に基づく水門・堰の耐震性能照査に関する計算例 平成20年3月(独)土木研究所 建設省河川砂防技術基準(案)同解説 設計編 [Ⅰ] 平成9年9月(社)日本河川協会 |

LOADING